企业招投标
人才招聘
邮箱登录
= 集团下属公司 =
华之杰塑料建材
原乡文旅集团
浙江华盛达建设集团
德清县华盛达外语学校
华盛达产业
INDUSTRIES
首页 · 华盛达产业 · 房地产业 · 项目介绍 ·
华盛达 · 城河花园
塑料建材
金融产业
银行投资
互联网金融
基金管理
资产管理
财富中心
担保公司
中小企业金融服务中心
民间融资服务中心
典当公司
融资租赁
文旅产业
湖州原乡小镇
原乡·大丰温泉旅游度假村
原乡·硒谷休闲养生村
杭州华盛达雷迪森广场酒店
建筑产业
房地产业
项目介绍
教育产业
德清县华盛达外语学校
长兴县华盛达睿达实验学校
HSD HOLDINGS
华盛达 · 城河花园
购房咨询热线:0572-8424333 销售展示中心:乾元镇环城西路60号
项目介绍
乾元镇最繁华地段 最稀缺的多层公寓
最方便的生活配套 最成熟的居住小区
把家安在花园里
最繁华的地段:
城河花园位于乾元镇中心区位,南临环城西路,西靠东苕溪,距杭宁高铁德清站仅1000多米,交通十分便捷。
最稀缺的多层公寓:
土地资源稀缺,多层公寓将更加稀缺。小区由顶级设计院—中国美院设计,规划设计简洁大气,布局合理。每幢建筑、每个房型均能享受充足的采光。
最方便的生活配套:
乾元镇是德清县老县城所在地,银行、医院、学校、菜场等生活配套齐全。
最成熟的居住小区:
小区用地60亩,形成一定规模小区,具体分二期开发,一期30亩,已竣工交房;二期30多亩,正在开发,可建面积3万多平方米,可建住宅近300套,是乾元镇最成熟小区之一。
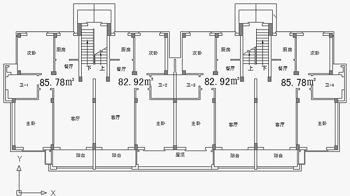
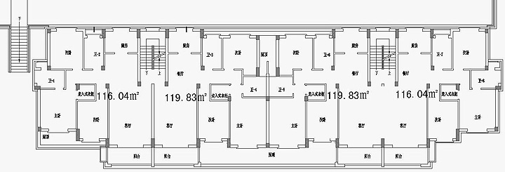
户型展示
地理位置
德清县乾元镇德清大桥东侧、环城西路北侧。
地址:浙江省湖州市德清县阜溪街道中兴北路898号
HGJT@HUASHENGDA.CN
电 话:0572-8081198
版权所有:华盛达控股集团有限公司 浙ICP备11053938号
欢迎关注“华盛达集团”
官方微信公众账号